
Transforming a campus wellness center into a digital destination through integrated AV design
Samford University’s Seibert Wellness Center has reopened as one of the most dynamic and technologically advanced facilities on campus, where wellness, competition, and connection come together. The transformed complex includes the renovated Seibert Hall and Bashinsky Field House, along with a new expansion that features a multipurpose gym and event stage overlooking Samford’s football stadium.
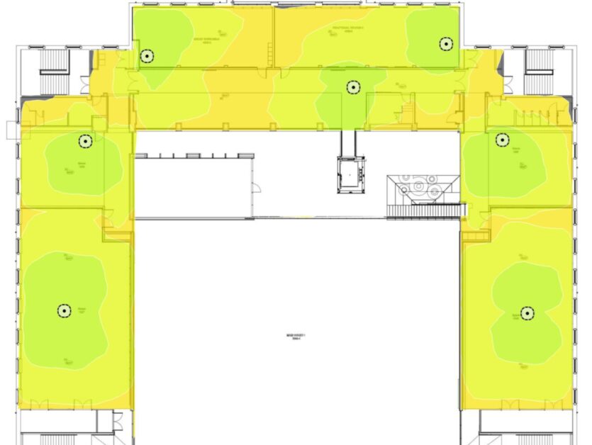
Newcomb & Boyd provided audio-visual design, Wi-Fi predictive heat mapping, and contract administration services for this milestone project. Our team helped Samford create a future-ready environment that integrates wellness, academics, and digital innovation.
Project Highlights
-
Esports suite with competitive gaming, broadcast streaming, and real-time shoutcasting
-
Multipurpose gym and performance venue with full-range PA, DVLED screens, and production AV
-
Distributed buildingwide audio system with centralized and mobile control
-
DVLED branding and digital signage for engagement and identity
-
Flexible classrooms supporting athletic and academic functions
-
Wi-Fi predictive modeling for optimized connectivity

A Campus Hub for Play, Performance, and Possibility
At the heart of the facility is Samford’s new Esports suite, designed for both casual and competitive gaming. The space features high-bandwidth, low-latency video transmission and a production broadcast suite that allows shoutcasters to stream competitions through platforms such as Twitch. Integrated cameras, microphones, and in-room displays turn every match into a professional-quality experience for both players and spectators.
The multipurpose gym and performance venue includes a full-range JBL audio system, ruggedized DVLED screens with IMAG support, and high-bandwidth video feeds connected to Samford’s main production room across campus. This flexible setup supports live concerts, intramural sports, and large-scale university events with equal ease.

Smart Connectivity from the Ground Up
To ensure reliable performance, Newcomb & Boyd conducted Wi-Fi predictive heat mapping during design. This process identified optimal access point locations and confirmed strong, consistent coverage throughout the building before construction began.